登録番号:136最終更新日:2026年03月04日
登録番号:136
基本情報
情報掲載日
令和8年3月5日(登録)
取引形態
- 売却
価格
5,000,000円
所在地
和水町江栗
建物の構造
木造
建築年
昭和28年頃築
土地の面積
493.82㎡
延床面積
123.60㎡
ペットの飼育
室内可
補修の要否
大規模な改修が必要
補修の費用負担
入居者負担
利用状況
空き家(R7年~)
設備等
電気
即使用可
風呂
その他(五右衛門風呂)
上水道
井戸(ボーリング)
キッチン
ガスコンロ
下水処理
無
トイレ
汲取り(和式)
家財等残置物
有
駐車場
無(3台程度)
附帯物件
附属屋(納屋)
補足情報
・風呂:五右衛門風呂は使用不可
・太陽熱温水器:使用可能(浴室内の蛇口付近配管からの水漏れあり)
・キッチン:給湯設備なし
・テレビ受信:地区の共聴アンテナ
・平成2年7月豪雨で床上浸水被害あり。
・規制区域:洪水浸水想定区域(0.5~3.0m未満)
・雨漏りの有無:無(目視での確認は無)
・白アリ被害の有無:無(目視での確認は無。専門業者による白アリ検査未実施)
・建物の測量・更生登記が必要
※別添の「物件概要」「特記事項」をご確認ください。
・太陽熱温水器:使用可能(浴室内の蛇口付近配管からの水漏れあり)
・キッチン:給湯設備なし
・テレビ受信:地区の共聴アンテナ
・平成2年7月豪雨で床上浸水被害あり。
・規制区域:洪水浸水想定区域(0.5~3.0m未満)
・雨漏りの有無:無(目視での確認は無)
・白アリ被害の有無:無(目視での確認は無。専門業者による白アリ検査未実施)
・建物の測量・更生登記が必要
※別添の「物件概要」「特記事項」をご確認ください。
主要施設への距離
役場
6.1km(和水町役場)
町立病院
5.9km(和水町立病院)
保育園
4.7km(菊水ひまわり園)
小学校
7.2km(菊水小学校) ※スクールバス有
中学校
5.9km(菊水中学校)
金融機関
6.5km(肥後銀行菊水支店)
その他
6.9㎞/(公園[ロマンパーク])/4.2km(なごみ川沿郵便局)/5.8km(スーパー菊屋)/5.0km(菊水分署)/6.3km(江田駐在所)/6.9km(菊水ロマン館[物産館])/0.6㎞(地区公民館)/4.0km(バス停[蛇田])/15.0km(JR[玉名駅])/11.4㎞(新幹線[新玉名駅])/4.8㎞(菊水IC)40.0㎞(熊本市)/85.0㎞(福岡市)
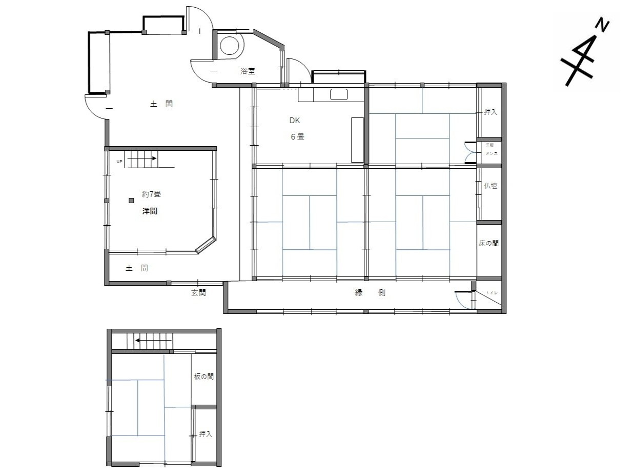
間取図
玄関
玄関(土間)
土間
和室8畳
和室6畳(仏間)
和室6畳
洋室6畳
台所
浴室
トイレ
縁側
2階 和室6畳
設備機器(井戸ポンプ)
付属屋(納屋)
接道
その他(間歩)
360°バーチャル画像はこちらから(熊本県空き家バンクプラットフォーム)
このページに関する
お問い合わせは
お問い合わせは
和水町移住定住支援センター(なごみ移住計画)
TEL:0968-79-7535
このページに関するお問い合わせ
まちづくり課 和水町移住定住支援センター(なごみ移住計画)
TEL:0968-79-7535
和水町移住定住サイトトップへ
ご連絡先 : nagomi.iju01@gmail.com
空き家バンク
他のカテゴリを見る
カテゴリ選択
空き家バンク物件一覧
空き家バンク制度について
貸したい、売りたい(空き家所有者向け)
借りたい、買いたい(移住希望者向け)
空き家バンクによる物件の調査及び媒介に関する協定
空家等解消に向けた官民連携協定
登録番号:136
登録番号:134
「空き家個別相談会」(相談無料)
登録番号:105
登録番号:80
登録番号:133
登録番号:130
登録番号:117
登録番号:100
登録番号:128
登録番号:125
登録番号:124
登録番号:123
登録番号:121
登録番号:120
登録番号:74
登録番号:75【交渉中】
登録番号:79
登録番号:109
登録番号:114
登録番号:115
登録番号:118
